PEV
Una casa en el Retiro
Intervención difícil pero bonita. Es lo que conlleva realizar un proyecto de arquitectura para uno de esos grandes amigos que se cuentan con los dedos de una mano. Esto pudiera ser un problema pero saquemos de ello la virtud que existe entre los amigos de la infancia: no hay medias verdades ni opiniones.
Es una casa a 10 metros del Parque del Retiro, entonces separada de la mía por un simple tabique entre los salones de ambas viviendas.
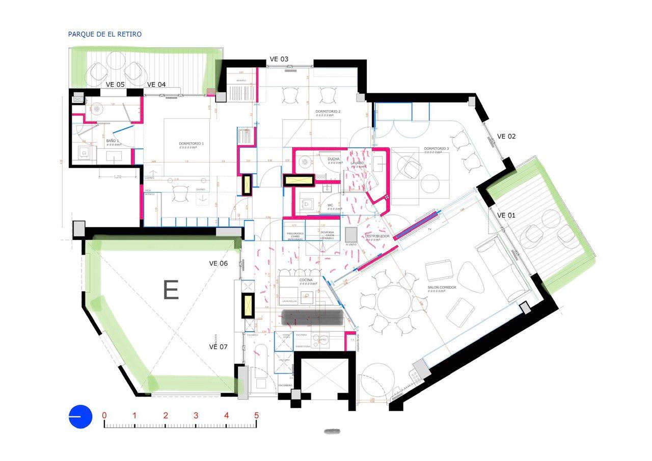
En este proyecto está El Retiro, los juegos de la infancia, el abrir y cerrar las puertas del destino, una casa que es un juego, con una múltiple configurabilidad de usos. Un salón que se abre, se amplía o se reduce según se requiera; espacios para dormir, o para estar, el estudio, el juego, o anexos como vestidores o salas con libros, vídeos o vinilos de música; todo ello en una sola habitación, o en dos, o en tres, o ¿porque no en cuatro?
Existe un muro secreto y dos barras de alabastro, como la de Los Gatos, La Dolores, Casa Alberto o La Trocha. Pilares de hormigón vistos, porque entre los amigos no se esconden los secretos, un suelo de madera y gresites rojos seccionados entre el solado de hormigón y basalto, como pétalos o huesos de cerezas y albaricoques que desordenan lo racional y la inútil funcionalidad de lo correcto cuando se es niño. Hay también paredes que se mueven, de papel traslúcido, que aportan luminosidad e imaginación a las estancias, como la caverna de Platón y la ilusión en la belleza de lo sencillo: las risas, las chicas guapas, el buen cine o la música de antes,
Esta casa es todo esto y mucho más, y todo cabe en un plumier que es el porvenir y la memoria






