Reforma integral
2025

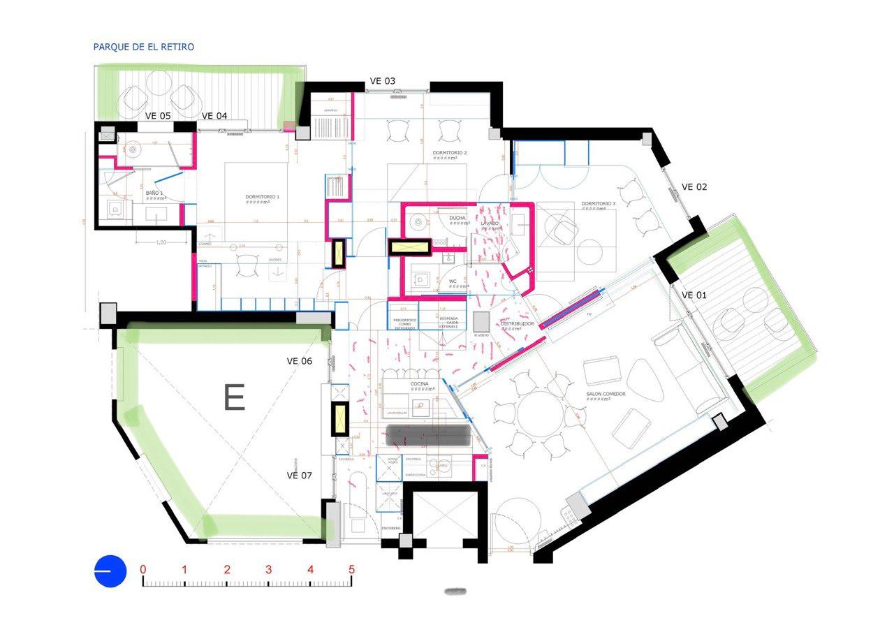
PEV

Davant del Retiro

Poeta Esteban de Villegas (Madrid)
Rehabilitació integral d’un habitatge davant del Retiro

Una intervenció difícil però bonica.
Això és el que implica fer un projecte d’arquitectura per a un d’aquells grans amics que es poden comptar amb els dits d’una mà. Podria semblar un problema, però traguem-ne la virtut que tenen les amistats d’infància: no hi ha mitges veritats ni opinions a mitges tintes.

És una casa a només 10 metres del Parc del Retiro, separada de la meva per un simple envà entre els salons de totes dues vivendes.

En aquest projecte hi ha El Retiro, els jocs de la infància, les portes del destí que s’obren i es tanquen, una casa que és un joc, amb una configurabilitat múltiple d’usos. Un saló que s’obre, s’amplia o es redueix segons convingui; espais per dormir, per estar-hi, per treballar, per jugar, o com a annexos com vestidors, sales amb llibres, vídeos o vinils de música; tot això en una sola habitació, o en dues, o en tres, o… per què no en quatre?

Hi ha un mur secret i dues barres d’alabastre, com les de Los Gatos, La Dolores, Casa Alberto o La Trocha. Pilars de formigó vist, perquè entre amics no hi ha secrets. Un terra de fusta i mosaic vermell fragmentat, que es fon amb el paviment de formigó i basalt, com pètals o pinyols de cireres i albercocs que desordenen la racionalitat i la funcionalitat inútil del que és correcte quan ets un nen. També hi ha parets mòbils, de paper translúcid, que donen lluminositat i imaginació als espais, com la caverna de Plató i la il·lusió en la bellesa de la senzillesa: les rialles, les noies guapes, el bon cinema o la música d’abans.

Aquesta casa és tot això i molt més.
I tot cap dins d’un estoig, que és el futur i la memòria.