Habitatge
2024

VA

Casa 360

La Alcarria, Brihuega. Guadalajara
Casa a la Alcarria

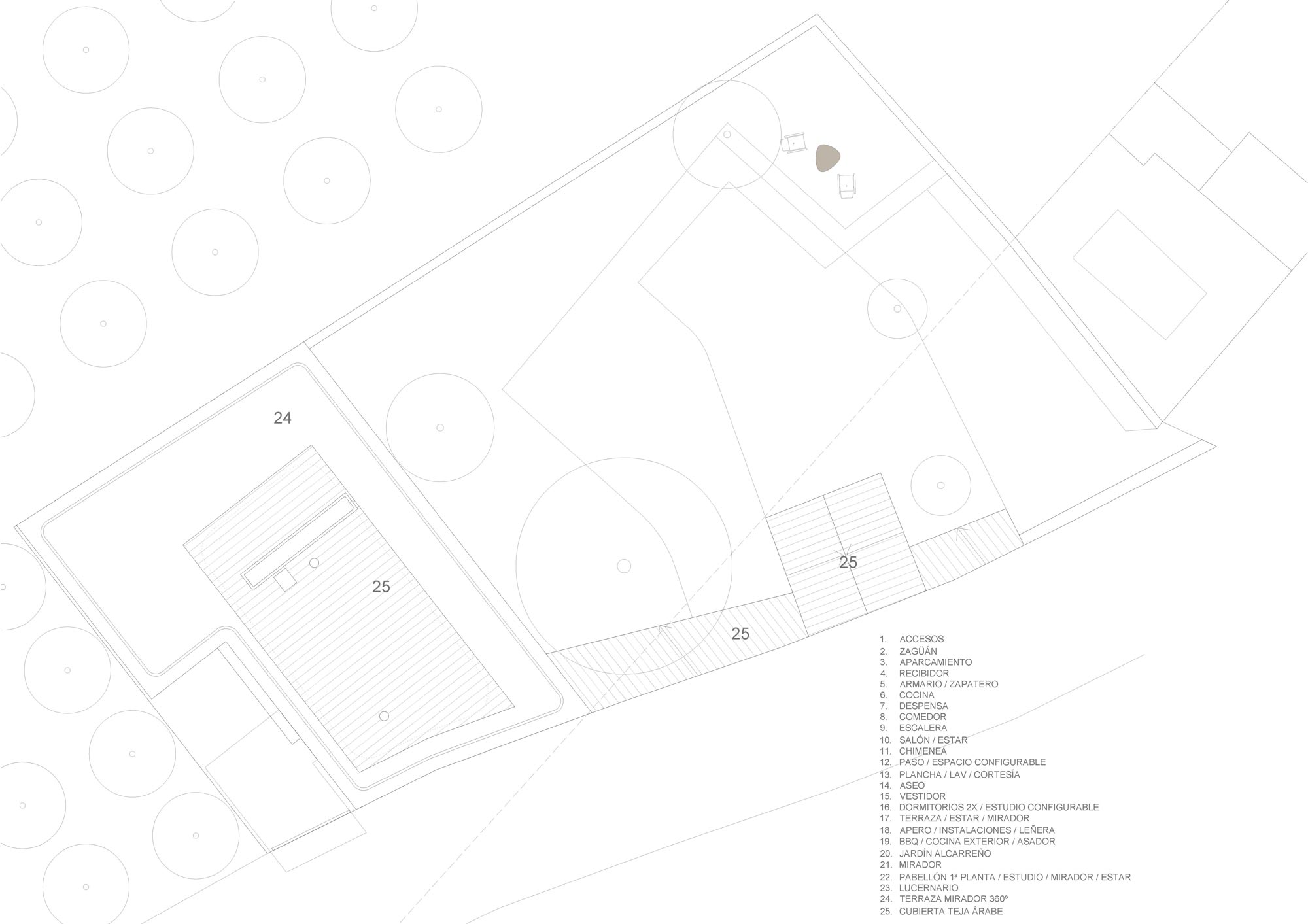
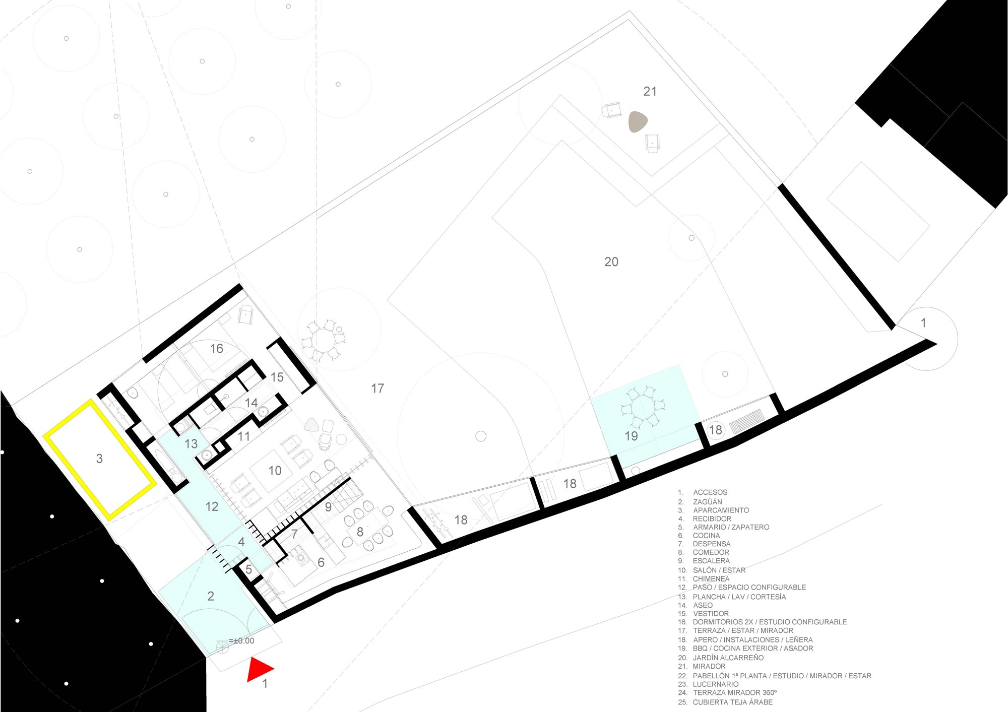
A dalt d’una plana elevada, entre ametllers i amb vistes a Valdeavellano i la Serra d’Ayllón, s’ha triat aquest lloc per emplaçar un habitatge senzill destinat a una persona vinculada a la reflexió, l’escriptura i els llibres. L’habitatge se situa a la part més alta de la parcel·la, sota el refugi d’un talús amb ametllers a l’extrem nord i amb vistes des de la planta baixa cap a un petit vall lleugerament aterrassat amb orientació sud.

Sala d’estar, menjador, cuina, dormitori, cambra per a eines, habitació per a convidats i una terrassa sota un porxo que emmarca el paisatge a la planta baixa. A la planta primera hi ha un estudi, una biblioteca i un mirador amb vistes de 360º. L’opacitat i el refugi de la planta baixa, construïda íntegrament amb pedra de tova calcària, contrasta amb la lleugeresa i la transparència de la planta superior, projectada en vidre i perfileria metàl·lica de secció molt reduïda; similar a una llanterna que es pot apagar mitjançant una cortina de gran gramatge, pensada per garantir discreció, acústica i temperatura, de manera molt similar al foc d’un far que gira entre la llum i la penombra. És un lloc per observar, per a la introspecció i l’escriptura enmig de la natura.